[* El plan en discusión fue preparado en enero de 1974 por el autor y el personal de la Universal Restoration Incorporated, Washington DC.]
Frente a los restos de la Ciudad Colonial de Santo Domingo está el Monasterio de San Francisco, uno de los conjuntos monásticos más antiguos localizados en el Nuevo Mundo. A pesar de que haber perdido parte de su esplendor, se le puede seguir viendo desde una gran distancia, y su prominente lugar en lo alto de una colina hace que el complejo sea un hito importante. La ubicación, su significancia visual, sus méritos arquitectónicos y culturales, sus importantes connotaciones históricas hacen que el monasterio sea hoy un segmento integral y fundamental de la herencia de la isla y un activo visual de las áreas circundantes. Estos aspectos hacen que al complejo sea digno de un programa de cuidadosa preservación que asegure su supervivencia y aumente su importancia y significado.

Fig. 1: Santo Domingo, plan esquemático de la Ciudad Colonial con el monasterio de San Francisco en el centro.
El desarrollo arquitectónico de la edificación ha sido complejo*. * [Para una descripción de los edificios y su historia, ver Palm, Erwin Walter, Los Monumentos Arquitectónicos de la Española, C.T., Universidad de Santo Domingo, 1955, vol. I, p. 188-191.] Dañado y destruido en muchas ocasiones por terremotos y otros desastres naturales, sin un largo y cuidadoso análisis es difícil definir con precisión las fechas y los orígenes del segmento arquitectónico que ha quedado in situ*. [* Las conclusiones y métodos expuestos se basan en observaciones preliminares y están sujetos a cambios tras la finalización del estudio. Los dibujos se prepararon con la ayuda de un amplio registro fotográfico. Por lo tanto, Las dimensiones son sólo aproximaciones, y de ninguna manera totalmente exactas.] La primera estructura parece haber sido erigida a comienzos del siglo XVI, una estructura pronto se convirtió en víctima de un terremoto. En el siglo siguiente se dio un constante proceso de reparación y reconstrucción de los daños causados por las repetidas fuerzas sísmicas. Hacia 1664 el monasterio había alcanzado en cierta medida su forma actual. Pocos años después, el complejo fue una vez más destruido por los terremotos. Sin embargo, una vez reparado, no fue hasta mediados del siglo 18 que la reconstrucción sería necesaria, debido a un daño similar. Para 1795 los franciscanos, la Orden que estableció el monasterio, abandonó los edificios, lo que conducía a un proceso gradual de deterioro y abandono. Este proceso de deterioro, como resultado de terremotos y otras fuerzas medioambientales, se aceleró adicionalmente por la utilización del complejo para variados usos, en particular durante el siglo 19, cuando sirvió como un campamento fortificado, con emplazamientos de armas. Hoy en día los imponentes fragmentos de mampostería, en tan mal estado y con el apoyo de los soportes temporales de simples madera, son los únicos testigos de lo que alguna vez fue un tan importante complejo.
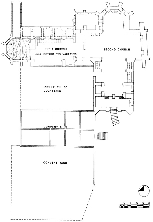
En la actualidad, todavía se pueden reconocer en el monasterio tres elementos principales: un espacio de la iglesia, con orientación norte-sur; un espacio abovedado secundario, unido a un crucero occidental de la iglesia; y un tercer edificio rectangular tope con la esquina sur-oeste de la iglesia. Rodeado por estas tres estructuras y por un alto muro hay un espacio de patio, que todavía contiene un pozo. Hacia el sur de la rectangular y probablemente la estructura más interna se extiende un espacio abierto rodeado por una pared.

Fig. 2: Plano del Monasterio de San Francisco en las actuales condiciones (1974). Fragmentos de las bóvedas que aún permanecen se indican en las líneas punteadas.
La nave de la iglesia consta de cuatro divisiones de largo y termina en el extremo norte con un pequeño crucero y ábside poligonal contiguo. De la bóveda original, con sus sencillas nervaduras de yeso, se conservan sólo algunas piezas, principalmente sobre el ábside. Todavía son visibles algunas de las decoraciones simples pintadas. La nave en sí, una vez abovedada, tiene pequeñas capillas insertadas entre los contrafuertes, que absorbieron las grandes fuerzas laterales de la bóveda principal. La división más al sur es un tanto diferente y probablemente representa un nártex. Aunque ninguna evidencia física directa parece mantenerse, el cruce de la nave y crucero estuvieron seguramente coronados por una cúpula.


En el frente sur, donde se encuentra la fachada de la entrada principal, pequeñas torretas han desaparecido de los dos contrafuertes de la esquina y la sección central arqueada de la fachada se ha perdido. El portal elaborado, sin embargo, sigue siendo en gran parte intacto. La sección central arqueada era más probablemente un reflejo directo de la bóveda de la nave, una forma similar a la fachada del transepto oriental. Con respecto a la pared oriental, los contrafuertes, con paredes y capillas abovedadas, están en gran parte intactos y se extienden a la altura del nacimiento de la bóveda de la nave, mientras que la fachada del transepto en el este, adornado por un atractivo portal de una entrada lateral, prácticamente ha desaparecido. Se conserva una gran parte del ábside poligonal con sus bóvedas y su exterior de contrafuertes.

Fig. 5: Condiciones actuales del muro oriental de la nave de la iglesia principal.
El perímetro occidental, sobre todo en la nave central, está
muy dañado.
Junto al transepto occidental de la iglesia hay espacio abovedado con
orientación este-oeste, de unas seis entrantes a lo largo con un coro
profundo y completado por un final poligonal. Mientras que el lado
norte de este espacio abovedado con sus capillas con cúpulas contiguas
se ha conservado, la bóveda principal solamente se sostiene en unos
pocos segmentos. El coro y el ábside, ambos con patrones más elaborados
de bóveda de nervadura gótica, resisten aunque con el apoyo de soportes
de madera para evitar el colapso.

Fig. 6: Condiciones actuales de la facha sur y oriental de la iglesia principal.
De la tercera edificación, por ahora poco sabemos. Una muy tardía estructura de hormigón se ha insertado en el edificio de dos pisos, para que se adecúe a fines diferentes. Una gran parte de las paredes exteriores, gravemente debilitadas, han desaparecido. En el lado oriental, sin embargo, permanece un hermoso portal con la decoración de los motivos familiares del cordón franciscano y está enfrente de la plaza de entrada. Poco se sabe de los dos espacios abiertos, que forman parte del complejo, y estas áreas requerirán de una amplia exploración arqueológica para determinar con más exactitud su fin.

Fig. 7: Elevación sur de la iglesia principal con su portal.

Fig. 8: Elevación oriental de la iglesia principal, su nave y transepto.

Fig. 9: Ábside de la iglesia principal y elevación interior norte de la segunda iglesia.
El desarrollo de un concepto de preservación para el Monasterio de San Francisco tiene que estar guiado por una serie de criterios. La supervivencia de los restos físicos es en este momento el requisito más importante. Sin embargo, además de la consolidación del propio tejido de mampostería, también es importante restaurar el monasterio en el sentido de su prominencia visual y restablecer la relación integral entre el complejo, su entorno directo y la ciudad en su conjunto. Además, para restablecer el impacto visual de los edificios, pertenece a este proceso el desarrollo de un programa claro y atractivo de la interpretación y el uso, transmitiendo el significado y la importancia de los edificios y su diseño. Mientras que la consolidación es principalmente un problema tecnológico, esto último es un concepto más filosófico.

Fig. 10: Coro y muro norte con las capillas abovedadas de la segunda iglesia.
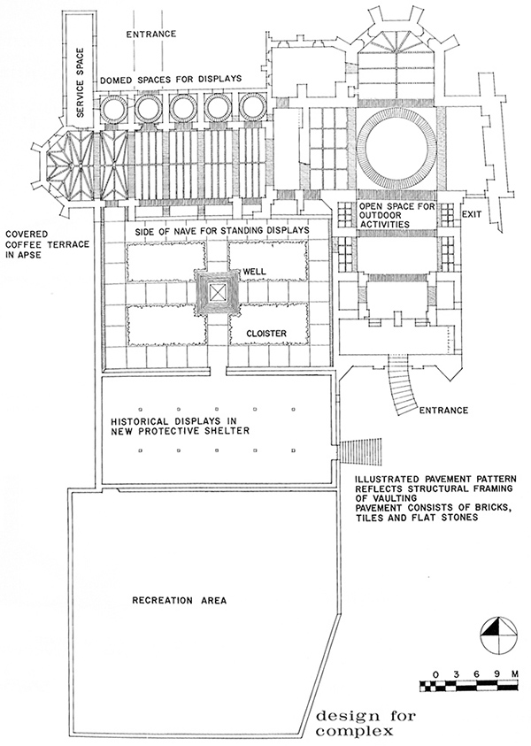
El diseño conceptual propone considerar estos aspectos. Se ha previsto un programa de restauraciones parciales y reconstrucciones aparte de la consolidación estructural que se describe a continuación. En la actualidad, los fragmentos de mampostería que perduran difícilmente pueden ser interpretados como un edificio debido a que grandes segmentos de la pared y la mayor parte de las bóvedas han desaparecido. La comprensión y la vivencia de los edificios como una entidad arquitectónica y una hazaña de ingeniería de la época, por lo tanto, está fuera de las órbitas de la mayoría de sus visitantes.

Fig. 11: Condiciones actuales del portada de entrada secundaria con sus formas decorativas.
El tamaño y la disposición espacial de la iglesia con su gran nave, crucero y coro, lo hacen adecuado como un espacio de reunión al aire libre. Ábside y coro son los espacios más viables para la construcción de algún tipo de puesta en escena al aire libre semi-permanente, que a su vez estarían protegidos de los cambios climáticos mediante una reconstrucción parcial de la bóveda sobre este espacio. Además, la reconstrucción de esta bóveda brinda la oportunidad de proteger más eficazmente las zonas escayoladas pintadas con motivos decorativos. Por otra parte, los fragmentos de la pared no sólo estarían más efectivamente mejor sujetados, sino también que esta reconstrucción reintegraría algunas de las experiencias espaciales y de escala a la estructura eclesiástica.

Fig. 12: Plano del monasterio con los usos propuestos y los patrones del pavimento, mostrando la configuración techo del complejo original.
Para mejorar aún más la experiencia arquitectónica de esta estructura, tanto las fachadas del sur y del este como las del transepto oriental deberían ser reconstruidas a la altura del principio de la nave de la bóveda. No sólo han quedado escritos y documentos gráficos que posibilitan esta reconstrucción, sino también se dispone de suficiente evidencia física. Tomando en cuenta la prominencia visual de las fachadas, la más grande de las cuales es la primera en ser observada al uno acercarse, esta reconstrucción es deseable y de gran importancia.
Mientras que la estructura abovedada contigua del transepto
occidental es parecida estilísticamente, el ambiente es distinto. La
altura y la anchura son más pequeñas y formaron originalmente un
espacio más cerrado. Hace tiempo que la pared del sur y las bóvedas han
desaparecido, pero la hilera de capillas abovedadas en el muro norte
todavía subsiste. Los escasos metros cuadrados disponibles, la
orientación y localización de los espacios secundarios permiten que los
restos de esta edificación se adecúan a una intervención de
refrescamiento tan simple como eficaz. Un acceso secundario permitiría
la entrada de materiales, mientras espacio de servicios estaría
disponible en el norte del coro, en donde hay un espacio sombreado que
sería muy agradable como área de descanso.
La recreación de algunos de la experiencias arquitectónicas de esta
estructura puede ser difícilmente pueda conseguirse debido a la gran
cantidad de estructuras desaparecidas. Sin embargo, la presencia de
grandes segmentos esparcidos de mampostería ofrecerían la oportunidad
de establecer un "Musée lapidaire", una pequeña exposición que se
podría ubicar en el lado sur. El montaje de estos marcos de "fragmentos
de acero diseñados correctamente", posibilitarían una más efectiva
interpretación del espacio y sus partes. Con gran efecto las capillas
abovedadas podrían utilizarse para fines similares, debido a los
significativos contrastes entre los espacios abiertos y los totalmente
cerrados.
El uso de la tercera estructura es más simple. El uso original de esta
estructura no se ha determinado, y por eso las alteraciones
subsecuentes han oscurecido la apariencia original y su diseño. Además,
las condiciones físicas de las paredes son peores que en otras
estructuras, requiriendo por lo tanto un sistema más amplio de apoyo.
El levantamiento de las paredes necesarias de reserva ofrecería la
oportunidad de construir una estructura simple, con la que se haría una
estructura abierta que protegería el resto del tejido de mampostería y
que al mismo tiempo, proporcionaría un espacio para la
interpretación de la evolución y la historia del monasterio con la
ayuda de exposiciones simples y permanentes.

Fig. 13: Propuesta de reconstrucción del muro oriental de la iglesia principal. Sobre las líneas punteadas se presentan las áreas reconstruidas.

Fig. 14: Propuesta de reconstrucción del ábside de la iglesia principal y de la fachada interior norte de la segunda iglesia. Sobre las líneas punteadas se presentan las áreas reconstruidas.
A la vez, los descubrimientos que se hiciesen durante las
investigaciones y los procesos arqueológicos podrían efectivamente ser
expuestas aquí.
Durante el proceso de comprensión e interpretación de todo el complejo,
un papel fundamental es el desempeñado por la superficie del suelo,
que, en la actualidad, es de tierra con fragmentos dispersos. Aunque no
pertenezca originalmente a la estructura, la instalación de un
pavimento modelado con un diseño que reflejase el techo de la
estructura original sería de gran importancia.
De esta manera, la utilización y la protección de los fragmentos
restantes pueden mejorarse, pero lo más importante es en ese plano se
restablezca la configuración de la estructura, permitiéndole al
visitante "leer" y comprender la composición arquitectónica y
estructural del complejo. Mediante el uso de variados colores y
texturas tales como ladrillo, piedra y hormigón, se puede lograr un
efecto estéticamente agradable.
Un tratamiento similar ha sido ideado para los espacios exteriores
adyacentes, aunque la configuración exacta como se indica en el
proyecto puede tener que ser modificado y adaptado para reflejar los
descubrimientos realizados durante la investigación arqueológica. En la
actualidad, el patio ha sido tratado con un simple modelo pavimentado
que refleja un claustro del monasterio tradicional. La integración de
otros rasgos de paisajes pequeños y fáciles de mantener mejorará estos
efectos.
Para lograr un concepto eficaz y significativo de preservación, como se
propone anteriormente, queda por resolver una serie de problemas
técnicos. Es necesario hacer un análisis cuidadoso de las distintas
fuerzas de desgaste que todavía se producen y causan el deterioro del
tejido. Los resultados de este estudio y su análisis en profundidad
serían las bases para la determinación de los sistemas tecnológicos
adecuados. En la actualidad, las estructuras están en peligro por los
temblores de tierra, las diversas tensiones ambientales como el sol y
la lluvia que devienen en humedad y secado alternos, orgánicos, y el
crecimiento micro orgánico, el uso y el mal uso etc. Los usos que le
hemos dado, junto a los abusos y a la negligencia, en gran medida han
promovido estos procesos de arruinamiento.
La estabilización y la consolidación de la mampostería son un problema
crítico. El tejido de mampostería, gravemente debilitado y descuidado,
ahora es más que nunca susceptible a los frecuentes sismos. Una amplia
operación de inyección para fijar sería, por lo tanto, obligatoria. La
determinación precisa de la composición de la fijación y la cantidad y
la regulación de la presión bajo la cual esta entraría en la
mampostería sería crítica y, por supuesto, sujetos a una serie de
investigaciones sobre el terreno. En términos generales, los agujeros
deben taladrarse a intervalos regulares en la mampostería utilizando
equipos especializados en perforación, con alto poder y libre de
vibraciones. Las capas de pegamento colocados en los orificios
posibilitarían que el pegamento pudiese ser bombeado a la mampostería
bajo presión adecuada. La mezcla del pegamento de cemento contendrá
combinaciones diversas para asegurar su factibilidad adecuada, su
resistencia e impermeabilidad, mientras se regula la viscosidad del
mortero, previniendo la contracción y el secamiento prematuro, e
inhibiendo que se pueda estropear la superficie a causa de una
eflorescencia o filtración. Será fundamental una regulación cuidadosa
del proceso de bombeo para proceder a la penetración necesaria, para
que pueda impedirse que se levante el tejido de mampostería o se
produzcan filtraciones a través de grietas o juntas.

Fig. 15: Proyección isométrica del ábside reconstruido y sus bóvedas de la iglesia principal.
Después de concluir la estabilización y la reconstrucción de
los diferentes componentes arquitectónicos, los agujeros verticales
serán taladrados de una manera similar, después de ajustarse el cemento
inyectado y producir la estabilización de la estructura. Una vez que
los agujeros verticales hayan sido perforados, los ligamentos serán
instalados. Estos ligamentos atarán la mampostería fuertemente a la
roca firme subyacente y de esa manera suministrarán una resistencia
suficiente ante un terremoto. Luego será necesario tensar esos
ligamentos para darle una proporción de refuerzo a la mampostería. Se
instalarán enlaces horizontales para solidificar aún más la
mampostería. Los ligamentos expuestos podrán ser cubiertos con una
mampostería semejando exactamente la obra existente.
Después de finalizar el proceso de estabilización, las paredes se
limpiarán a fondo para eliminar de la superficie todos los indeseables
contaminantes. Por lo demás, un sistema de impregnación con
preservantes de piedra especialmente diseñado aumentará aún más la
resistencia de la mampostería contra el desgaste ambiental, a la vez
que el comportamiento físico de la mampostería se mejorará
sustancialmente. Cuando se considere necesario o parecido al original,
la superficie podría ser tratada adicionalmente con lavado de cal o de
yeso.
La estabilización de la mampostería permite luego la puesta en práctica
de una serie de medidas para mejorar la gestión del lugar y de sus
estructuras. Estas medidas van desde la instalación de los dispositivos
y sistemas de exposición hasta un sistema de drenaje adecuado. Este
último será de importancia con el fin de preservar adicionalmente los
materiales, incluyendo restos arqueológicos, porque la penetración de
agua podrá evitarse o reducirse sustancialmente.
El concepto esbozado debe considerarse de carácter preliminar. Será
necesario un estudio cuidadoso de los restos arquitectónicos y
documentales, que suministrarían la información necesaria para la
determinación del alcance exacto y la forma del programa de
restauración y reconstrucción. Las condiciones existentes y los
exámenes arqueológicos tendrán que ser asumidos con diferentes procesos
tecnológicos disponibles hoy en día. Estos van desde las pruebas de
resistencia en la termografía u otras técnicas de ensayos no
destructivos modernas. Algunos de los resultados de estas
investigaciones tendrán un impacto en el propio diseño conceptual y
facilitarán la nueva información a ser interpretadas. El resultado
final, sin embargo, será el mismo - la conservación significativa de un
hito cultural, arquitectónico e histórico único, y el restablecimiento
de estas estructuras como punto focal y centro cultural de la ciudad,
testigo de un antiguo y rico pasado.
Las conclusiones y métodos expuestos se basan en observaciones
preliminares y están sujetos a cambios tras la finalización del
estudio. Los dibujos se prepararon con la ayuda de un amplio registro
fotográfico. Por lo tanto, las dimensiones son sólo aproximaciones, y
de ninguna manera totalmente exactas.
Publicado bajo el
título “The preservation of the Monasterio de San Francisco, Santo
Domingo”, Caracas: Boletín
del Centro de Investigaciones Históricas y Estéticas, núm.
20, julio de 1975. Facultad de Arquitectura y Urbanismo, Universidad
Central de Venezuela, pp. 142-156.
Traducción:
Miguel D. Mena
09.07.2016